Позвоните нам!
Звонок по России бесплатный
Мы с удовольствием ответим на все интересующие вас вопросы по срокам и стоимости разработки интересующего вас раздела.
Обращаем внимание!
Рекомендуем перед началом проектирования получить ГПЗУ - градостроительный план земельного участка
Стоимость разработки:
от 1 000 руб, кв. м.
Срок изготовления от 30-40 рабочих дней
Стоимость указана за два раздела: архитектурные и конструктивные решения, стадия П (проектная). Цена уменьшается при увеличении площади проектируемого таунхауса
|
Возможно вас заинтересует
Проект таунхауса на 4 квартиры
Проект таунхауса на 5 квартир
Проект таунхауса на 6 квартир в стиле банхаус
Проект одноэтажной гостиницы на 11 номеров в современном стиле
Первый этап проектирования
Разработка планировки будущего таунхауса, с учетом архитектурного облика и особенностей участка. Архитекторы предлагают несколько вариантов планировочного решения. Мы находимся в постоянном диалоге с заказчиком, обсуждаем планировки, вносим изменения и в результате приходим к общему, согласованному решению.
Первый этаж
Второй этаж
Третий этаж
Эксплуатируемая кровля
Второй этап проектирования
После утверждения планировочного решения, архитектор приступает к разработке внешнего облика таунхауса. Прорабатываются фасады со всеми деталями и материалом отделки, определяется вид и размер окон. Определяется дизайн входной группы.
Фасады утверждены. Приступаем к следующему этапу.
Третий этап проектирования
3D моделирование. Визуализатор совместно с архитектором превращают утвержденный черно-белый эскиз в объемное, цветное изображение. На таунхаус можно посмотреть со всех сторон. Еще раз все обсуждаем с заказчиком, вносим необходимые поправки.
Эскиз главного фасада на пять квартир
Эскиз главного фасада на пять квартир
Эскиз главного фасада на пять квартир
Утвержденный эскизный проект таунхауса окончательно размещается на участке и привязывается к его границам. Для дальнейшего проектирования нам потребуются отчеты о геодезических и геологических изысканиях, составляем техническое задание на изыскания и передаем в работу смежникам. Отчеты будут готовы через 3-4 недели.
Параллельно с изысканиями получаем технические условия на подключение к внешним инженерным сетам: электричество, водопровод, канализация, газ.
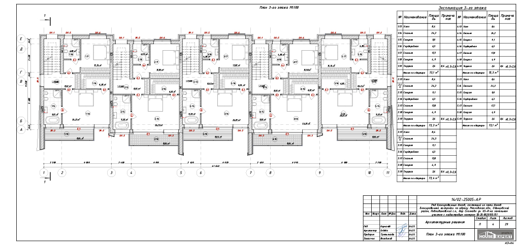
Архитектурные решения
Индивидуальный проект требует много времени и пока мы ждем результатов, для архитектора много работы, ему необходимо полностью выполнить раздел АР ( архитектурные решения).
Подробно ознакомиться о составе раздела и его оформлении можно прейдя по ссылке - Архитектурные решения, раздел АР
Пока шла разработка архитектурной части, смежники выполнили изыскания. Теперь время приниматься за работу конструктору.
Конструктивные решения
Конструктор в связке с архитектором разрабатывает свой раздел КР (конструктивные решения), при необходимости вносятся корректировки в АР. (архитектурные решения).
Подробно ознакомиться о составе раздела и его оформлении можно прейдя по ссылке - Конструктивные решения, раздел КР
Что будет результатом проектирования?
В результате проектирования вы получаете на руки документацию, оформленную согласно 87 постановлению правительства РФ:
- Архитектурные решения, раздел АР;
- Конструктивные и объемно-планировочные решения, раздел КР
Объем проектной документации зависит от технического задания заказчика и конструктивных особенностей проектируемого таунхауса.
Мы выполняем проекты таунхаусов для всех регионов России. Удаленное проектирование, это проще, чем вы могли себе представить!
Поможем расти вашему бизнесу! Звоните и пишите!
Бесплатная техническая поддержка
Мы понимаем как важно оперативно получать ответы на возникающие вопросы в процессе строительства. Строительный сезон короток и каждый погожий день на счету!
Отдел технической поддержки оперативно консультирует наших клиентов по всем проектным решениям. Просто позвоните нам по бесплатному многоканальному телефону и получите исчерпывающий ответ.
Правда удобно? А еще это бесплатно!
Мы будем консультировать вас на всем протяжении строительства! Мы всегда с вами и готовы помочь!
Всегда готовы помочь!
Возврат к списку
Акция
Новости компании
26 марта
Карантинная неделя
Режим работы компании в период карантинной недели c 30 марта по 5 апреля 2020 г.
Мы предлагаем:
Вы можете выбрать материал стен:
Обнаружив в тексте ошибку, выделите ее и нажмите Ctrl + Enter
|